Detaily napojení podhledů
Při nárocích na splnění požadavků na požární odolnost je nutné provést napojení buď jako pevné a zatmelené, nebo u volného napojení překrýt dilatační spáru potřebným počtem vrstev sádrokartonových desek.
Napojení podhledu na stěnu – pevné bez profilu (5.60.01)
Napojení podhledu na stěnu – pevné, příčné s profilem R-UD (5.60.02)
Napojení podhledu na stěnu – volné, stínovou spárou a profilem R-UD (5.60.03)
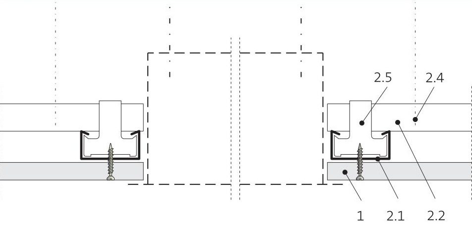
LEGENDA:
1. Sádrokartonová deska Rigips
1.1 Pruh ze sádrokartonu
2.1 Montážní profil R-CD
2.2 Nosný profil R-CD
2.3 Profil R-UD
2.4 Závěs
2.5 Křížová spojka (úhlová kotva)
5. Zatmeleno
5.1 Natmelená výztužná páska
5.2 Natmelený ukončovací ALU profil
či lišta na hrany L-Trim
6. Kotvení do nosné konstrukce
Pokud je do podhledu kotvena horní hrana příčky, je z důvodu omezení vedení zvuku opláštěním podhledu doporučeno přerušit sádrokartonové desky opláštění podhledu (viz 5.60.31).
Přesáhne-li celková velikost plochy podhledu cca 60 m2 nebo volná délka podhledu na jedné straně příčky ve směru kolmém k rovině příčky rozměr 6 m, je doporučeno zachytit příčné reakce příčky samostatným vyztužením (viz 5.60.32).
Napojení podhledu a příčky – s oddělovací spárou (5.60.31)
Napojení podhledu a příčky – s vodorovným vyztužením (5.60.32)
LEGENDA:
1. Sádrokartonová deska
2.1. Rigips montážní profil R-CD
2.2 Nosný profil R-CD
2.4 Závěs Nonius
2.4a Pásek k posuvnému závěsu R-CD
2.4b Závěs Nonius
2.5 Křížová spojka (úhlová kotva)
3. Minerální izolace
4. Rychlošrouby Rigips TN
5. Zatmeleno
5.1 Natmelená výztužná páska
Podélné vedení zvuku meziprostorem nad podhledem je nejúčinněji potlačeno dotažením příčky až k nosnému stropu (viz 5.60.40). Zvukově izolační clonu v dutině podhledu lze vytvořit vložením ucpávky z minerální izolace (viz 5.60.60).
Napojení podhledu k SDK příčce – příčka dotažena ke stropu (5.60.40)
Napojení podhledu a SDK příčky – přepážka v meziprostoru provedená výplní z minerální izolace (5.60.60)
LEGENDA:
1. Sádrokartonová deska Rigips
1.1 Pruhy ze sádrokartonu
2.1 Montážní profil R-CD
2.2 Nosný profil R-CD
2.3 Profil R-UD
2.4 Závěs
2.5 Křížová spojka (úhlová kotva)
3. Minerální izolace
3.1 Výplň z minerální izolace
4. Rychlošrouby Rigips TN
5. Zatmeleno
5.1 Natmelená výztužná páska
Při nároku na požární odolnost je nutno zabudovat svítidla podle návodu v Katalogu požárně odolných konstrukcí suché výstavby.
Kluzné napojení příčky na strop, podhled k příčce připojen pevně (5.16.11)
Zabudování svítidla – příčný řez (5.70.01)
LEGENDA:
1. Sádrokartonová deska Rigips
1.1 Pruhy ze sádrokartonu
2.1 Montážní profil R-CD
2.2 Nosný profil R-CD
2.3 Profil R-UD
2.4 Závěs
2.5 Křížová spojka (úhlová kotva)
3. Minerální izolace
4.1 Rychlošrouby Rigips 212/25 TN
4.2 Rychlošrouby Rigips 212/35 TN
5. Zatmeleno
5.1 Natmelená výztužná páska
6. Kotvení do nosné konstrukce
7. Napojovací těsnění
T Tloušťka opláštění příčky
Přerušené opláštění je možné opatřit např. krycím dilatačním profilem.
Dilatace podhledu – podél montážních profilů (5.65.02)
Dilatace podhledu – příčně přes směr montážních profilů (5.65.03)
Dilatace podhledu s dvojitým opláštěním (5.65.05)
LEGENDA:
1. Sádrokartonová deska Rigips
1.1 Pruh ze sádrokartonu přilepený jen na jedné straně
2.1 Montážní profil R-CD
2.2 Nosný profil R-CD
2.4 Závěs
2.5 Křížová spojka (úhlová kotva)
2.6 Spojovací kus R-CD
3. Minerální izolace
5.2 Natmelený ukončovací ALU profil či lišta na hrany L-Trim
Jak vybrat správnou sádrokartonovou desku pro podhled aby splňovala stanovené požadavky?












