Jaké jsou nejčastější chyby při montáži sádrokartonové příčky?
Sádrokartonová příčka – jednoduchá, rychlá a při správném provedení akusticky a protipožárně účinná konstrukce. V některých případech je daleko účinnější než jiné technologie. To všechno může příčka ze sádrokartonu splňovat při správném namontování. Setkáváme se s porušeními montážních pravidel, kdy může dojít k úplnému ztracení odzkoušených vlastností či porušení statiky konstrukce.
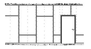
- Prvním krokem při montáži příčky je vyměření a následná montáž obvodových vodorovných UW profilů a svislých CW profilů. Tyto obvodové profily jsou přímo v kontaktu s nosnou konstrukcí. Aby nedocházelo k přenosu hluku, je potřeba profily podlepit pěnovým napojovacím těsněním. Tento krok je často opomíjený, jelikož to ‘‘není vidět‘‘, ale po montáži to bude rozhodně slyšet.
- Stojiny (CW profily) se ve většině případů nespojují s obvodovými UW profil Při spojení těchto dvou profilů k sobě zamezíme možnosti pohybu a dilataci konstrukce. (Výjimkou je prostor kolem otvoru v sádrokartonové příčce, toto místo je potřeba zajistit, a proto se např. kolem dveří UW profil s CW profilem spojuje např. perforačními kleštěmi.)
- Montážní profily (stojiny) jsou u příčky profily CW, které se vyrábí v několika délkových rozměrech. Příčky mají různé výšky, a někdy je tedy nutné profily napojit. V tom případě musíme vytvořit příložku, která se dá provést více způsoby. Dutina u napojení C se velmi často nevycpe minerální izolací a vzniká akustický most.

- Chyby při vkládání minerální izolace. Izolace by měla být vždy vložena celoplošně bez mezer a s případným vyvázáním podle typu izolace. Přečtěte si článek Kdy je nutné izolaci zajistit.
- Při montáži opláštění se desky orientují vždy na výšku ke svislým CW profilům. Používání zbytků desek na opláštění příčky je možné, ale je nutné dodržet minimální šířku přířezu, aby nedošlo k narušení celistvosti konstrukce. Používá se přířez s minimální šíří 400 mm a neměly by být dva přířezy vedle sebe ani nad sebou, aby nedocházelo ke vzniku křížových spár.
- Desky opláštění by neměly být montovány ,,na doraz“ k obvodové konstrukci. Správně by měla vzniknout mezera po obvodu celé konstrukce 5 – 10 mm, kterou je možné po montáži dotmelit. Přečtěte si článek Jak na zapravení rohů a koutů, aby nedocházelo k praskání.
Veškeré montážní zásady jsou uvedené v Montážní příručce sádrokartonáře.

